Chief Architect Premier

Professional Home Design Software

House elevation with annotations created from a 2D floor plan

Residential Home Design

For all aspects of residential and light commercial design. As you draw walls and place smart architectural objects like doors and windows, the program creates a 3D model, generates a Materials List, and with the use of powerful building tools, helps produce Construction Documents with Site Plans, Framing Plans, Section Details, and Elevations.

Subscription Options

New
Upgrade

Chief Architect Premier Includes:

  • Software Upgrades
  • Premium Catalog Downloads
  • Priority Technical Support
Billed Annually save 27%
Billed Monthly
BUY NOW

Free Introductory On-Demand Training
through August 26 ($495 Value)

Chief Architect Premier

  • Have a legacy license of Chief Architect? Save on your first year when you upgrade.

$1,995/yr.
$995 first year
Save 50% on year 1

Free Introductory On-Demand Training
through August 26 ($495 Value)

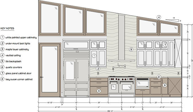
Kitchen wall elevation with cabinet dimensions

Kitchen, Bath & Interior Home Design

For kitchen, bath and interior renderings and virtual tours for interior design professionals. Help clients visualize with 3D, specify materials and produce Plan and Construction Drawings. Realistically design every detail in 2D, Elevation, or 3D perspective views. Select catalogs from a 3D Library with thousands of cabinets, appliances, furnishings and textures.

Discover the Power of Chief Architect

Discover the Power of Chief Architect

Chief Architect is 3D software for new construction, remodeling, kitchen, bath and interior design. Discover why millions of people use Chief Architect as the home design software product of choice for 3D visualization and construction drawings.

Building & Design Tools

Building & Design Tools

Powerful building and drafting tools make the design process efficient and productive. Quickly create detailed plans according to standard building practices. Automatic and manual building tools allow you to create a variety of roof styles, stairs, framing — both stick and truss, schedules and materials lists for cut, buy and estimating, dimensioning, cross‑sections, and elevations. See more building design features.

Cross-section and elevation of a house rendered as watercolor

Kitchen, Bath & Interior Design

Chief Architect uses smart design objects, such as cabinets, to quickly and easily create various styles, shapes and sizes. Chief Architect partners with specific manufacturers (cabinets, appliances, doors, windows, countertops and flooring) so that styles, finishes and other product-specific design details can be accurately drawn and rendered. Learn more about Kitchen, Bath & Interior Design features.

Kitchen, Bath & Interior Design

Chief Architect uses smart design objects, such as cabinets, to quickly and easily create various styles, shapes and sizes. Chief Architect partners with specific manufacturers (cabinets, appliances, doors, windows, countertops and flooring) so that styles, finishes and other product-specific design details can be accurately drawn and rendered. Learn more about Kitchen, Bath & Interior Design features.

Floor & Space
Planning

Use Chief Architect for Space Planning by placing and sizing architectural objects in your design. You can choose from specific manufacturers (cabinets, appliances, doors, windows, countertops and flooring) so that styles, finishes and other product‑specific design details can be accurately scaled and represented. Choose or create custom objects (non-manufacturer) or import objects into your plans to accurately represent your designs.

3D floor overview for a dollhouse view of a floor plan

Interior Design & Decorating

Chief Architect provides the best Interior Design Software for both 2D and 3D design and visualization. Design in 2D wall elevations, house plan views or in 3D. Choose from thousands of styles, colors, and materials to create realistic interiors from our 3D Library. Experiment with your interior design ideas using 3D models, virtual tours and advanced design tools.

3D Design & Modeling Tools

As you draw walls, the program automatically creates a 3D model and supports full 3D editing. With Chief Architect, you can design in any view for seamless and simultaneous editing between 2D & 3D. Advanced rendering provides both Photo Realistic and Artistic styles such as Line Drawing and Watercolor. An extensive 3D Library of architectural objects and tools make it easy to detail and accessorize your designs so that styles, finishes and other product-specific design details can be accurately rendered. See our Samples Gallery.

3D Rendering & 3D Walkthroughs

3D Rendering & 3D Walkthroughs

Communicate your ideas effectively with Chief Architect's wide range of 3D rendering techniques and view your designs in styles ranging from artistic to realistic. Create a video 3D walkthrough tour through your plan by controlling camera movements along a path. Learn how sunlight and shadows impact your designs with a stationary 3D walkthrough time-lapse animation illustrating the movement of the sun throughout the day or seasons.

Chief Architect Premier

Our top-rated home design software for professionals

Our top-rated home design software for professionals

Automatic Building Tools

Smart tool technology creates all the building systems automatically.


3D Rendering & Virtual Tours

Sell more jobs by helping your clients visualize with realistic renderings, 360° renderings, live 3D Viewer models and virtual tours.


Construction Documents

Create professional residential construction drawings for permits, subcontractors and clients.


Materials List & Schedules

Instant materials lists and schedules give you the information you need to quickly cost out your jobs.


Realistic & Artistic Rendering

Choose from a variety of rendering options: photo realistic (ray trace), artistic (watercolor / line drawing) and 360° renderings to communicate your ideas.

Photorealistic 3D rendering of a sample kitchen design

Name Brand & Custom Cabinets

Create full custom cabinetry or design using manufacturer brand specific cabinet catalogs.

Custom bathroom vanity cabinet with an integrated sink in the countertop

3D Library Content

Select from thousands of objects such as fixtures, appliances, millwork, furnishings and more from the 3D Library.

Kitchen and home appliances aid in home design with actual 3D symbol products

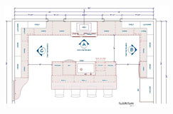
Kitchen & Bath Dimensions

Easily create floor plan and elevation dimensions to National Kitchen & Bath Association (NKBA) standards.

Kitchen floorplan with NKBA dimension standards

Design Options

Design Options

Style Palettes — Create client design options for doors, windows, cabinets and room colors. Dramatically change the look of a room by applying the Palette. Save style palettes to your library for future use or to share with other designers.

Kitchen cabinet styles rendered to help with design selections
3D kitchen rendering using a style palette tool to show design options

Remodeling

Rearrange walls, add rooms, and update cabinets, countertops and flooring. Design with as‑built and remodeling layers to detail, estimate, and visualize. If you change the size of the room, you can immediately see the updated materials list to estimate costs. Help your clients visualize your designs, and sell more jobs with realistic 3D renderings and virtual tours.

Bathroom floorplan and elevation organized on a Layout sheet for construction documents

CAD Tools for Productivity & Precision

Chief Architect has a powerful CAD software engine that includes tools for lines, polylines, splines, arcs and solids to produce objects that range from custom entry columns to a deck ledger detail. Quickly manipulate objects with multiple copy, align, reflect and replicate at specific intervals. A CAD-to-Walls tool imports AutoCAD® files and provides mapping for layers so you can quickly see the model in 3D. Draw custom CAD details, import as DWG/DXF/PDF, or choose from over 500 CAD details in the premium SSA catalog to overlay on your design.

Cross-section with dimensions of a residential house

Plan Sets & Construction Drawings

3D renderings and virtual tours help you sell the project and construction drawings help you specify, permit and build. All views in your project - Floor Plans, Framing, Electrical, Section Details and Elevations have a user defined scale and link to a specific drawing that updates as your design changes. Layers control what displays for each of the drawing pages to help create professional detailed construction drawings. See our sample construction drawings.

Detailed cross-section of a home created using the auto elevation 2D camera

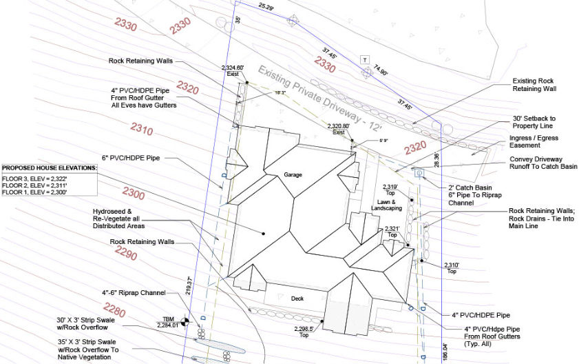
Site Planning, Terrain, Decks & Landscaping

Create site plans for single or multiple lots. Import terrain survey data or use the Terrain Modeling tools — terrain data can then be used for a 2D site plan or viewed in 3D to show the specific topography. Road, Sidewalk, Hill and Valley tools provide added detail. For Landscaping, there's over 4,000 plants with detailed information about each plant including integrated Hardiness Zone Maps. Define a North pointer and seasonal settings to create sun studies, shadow effects and overlays. Decking tools include automatic and manual deck framing; customize deck planking and materials.

Terrain Site and Disturbance plan for a residential construction lot