QUESTION
How can I easily apply a solid fill color to my walls in plan view, or to structural components in my cross section and camera views?

ANSWER
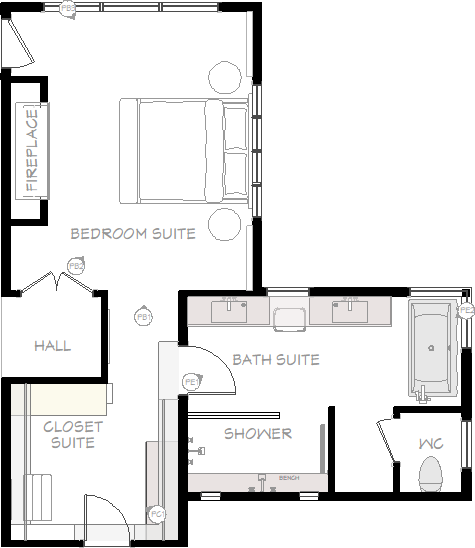
The term Poché refers to the technique of drawing structural elements with a dark fill to make them stand out from open spaces. In Chief Architect, you can apply Poché to the tops of walls and to the clipped edges of walls, floor and ceiling platforms, and roof planes. This feature can be used in plan views, cross section views, and floor overviews. It can also be applied in full cameras and full overviews when the Cross Section Slider is in use. Poché will display in all rendering techniques with the exception of Glass House.
In views where both parts of a pony wall display, Poché will only be applied to the upper wall. In addition, Poché does not display on Glass Walls or other walls composed of only transparent materials walls and is never applied to Invisible walls, Railings, Retaining Walls, or Fencing.
Poché can be displayed on a view-by-view basis using the view's Specification dialog. It can also be turned on or off in plan views sent to layout.
To apply Poché to walls in a plan view
- While in an active plan view, navigate to Tools> Active View> Edit Active View
.
You can also right-click on any given plan view within the Project Browser
and select Edit View.
- On the General panel of the Plan View Specification dialog that displays, check the Poché Walls box, then specify your desired color using the Color box.
The default color is black.

- Click OK to apply the change, and notice that all walls in the view will display with the selected color.
To apply Poché to cross section and floor overviews
- While in a cross section or floor overview, navigate to Tools> Active View> Edit Active View
.
You can also right-click on section or floor overview within the Project Browser
and select Edit View.
- On the Camera panel of the Specification dialog that displays, check the Display Poché box, then specify your desired color using the Color box.

- Click OK to apply the change, and notice that walls, floor and ceiling platforms, and roof planes that are cut will display with the selected color.
To apply Poché to full cameras and and full overviews when using the Cross Section Slider
- While in a full camera or overview, navigate to 3D> Camera View Options> Cross Section Slider
.
- In the Cross Section Slider dialog that displays, check the box beside one or more cross section cutting planes, then either use the slider(s) or enter your desired value(s).

- Click Done or OK.
- Remaining in the view, navigate to Tools> Active View> Edit Active View
.
- On the Camera panel of the Specification dialog that displays, check the Display Poché box, then specify your desired color using the Color box.

- Click OK to apply the change, and notice that walls, floor and ceiling platforms, and roof planes that are cut will display with the selected color.
To toggle the display of Poché on plan views that have been sent to layout
- While in a layout file, select the layout box that contains the plan view that you want to toggle the Poché on, then click on the Open Object
edit tool.
- On the Linked View panel of the Layout Box Specification, click the Edit View button to open the Plan View Specification, then check or uncheck the Poché Walls box to enable/disable its display. Since this is a dynamic view, this change will apply to both the original plan view located in the plan file and the view you see within the layout box.

- Click OK on all dialogs to apply the change.
